Your search results

גלר בנימינה הפקאנים

הבית למשפחה שלי - גלר בנימינה הפקאנים

חורשת הפקאנים - איכות חיים בלב בנימינה

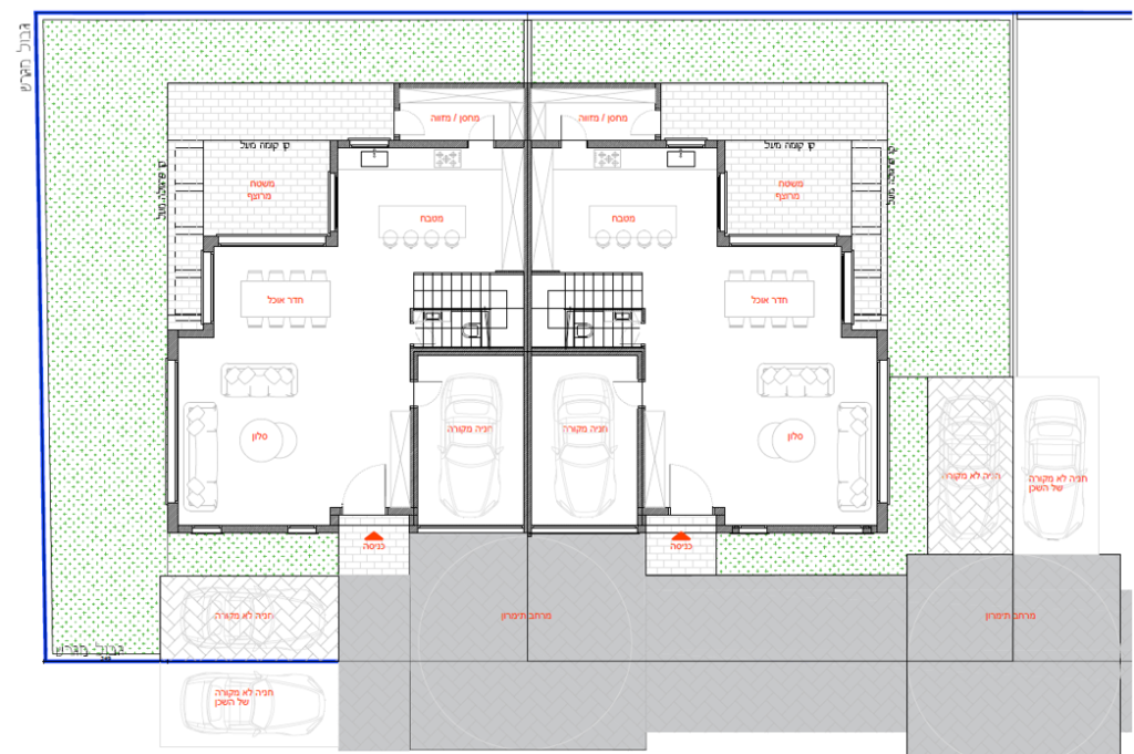
בצד המערבי של בנימינה, כחלק מפרויקט של 12 בתים צמודי קרקע, במרחק הליכה מהרכבת, יוצאים כעת לשיווק שני בתים דו-משפחתיים ייחודיים בתכנון אדריכלי מוקפד.

כל בית בשטח בנוי של כ-200 מ״ר, משתרע על מגרש של 250 מ״ר, ומציע חוויית מגורים בסטנדרט גבוה במיוחד:

  • חללים מוארים עם פתחים וחלונות גדולים במיוחד
  • גינה פרטית
  • יציאה מסודרת למרפסת גג ענקית
  • סוויטת הורים גדולה ומפנקת
  • מפרט טכני עשיר ואיכותי

הבנייה החלה – איכלוס צפוי בתוך שנה וחצי.
הזדמנות נדירה למי שמחפש שקט, איכות, ועיצוב ללא פשרות

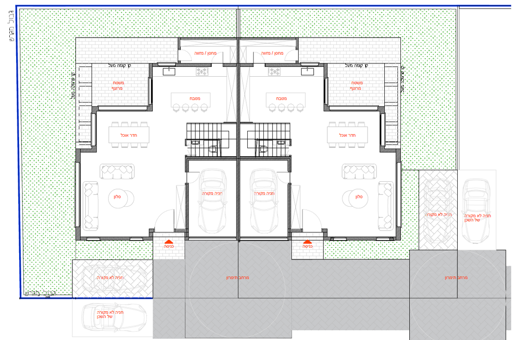
העמדה של 2 הבתים

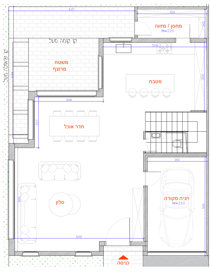
תכנית בית לדוגמא

קומת קרקע

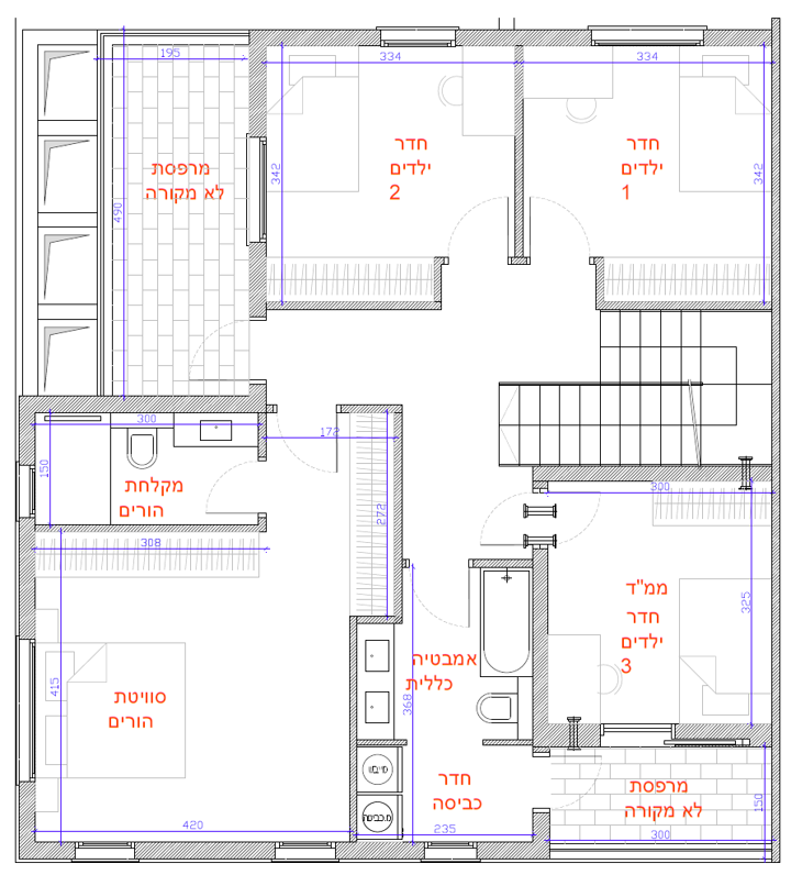
קומה א'

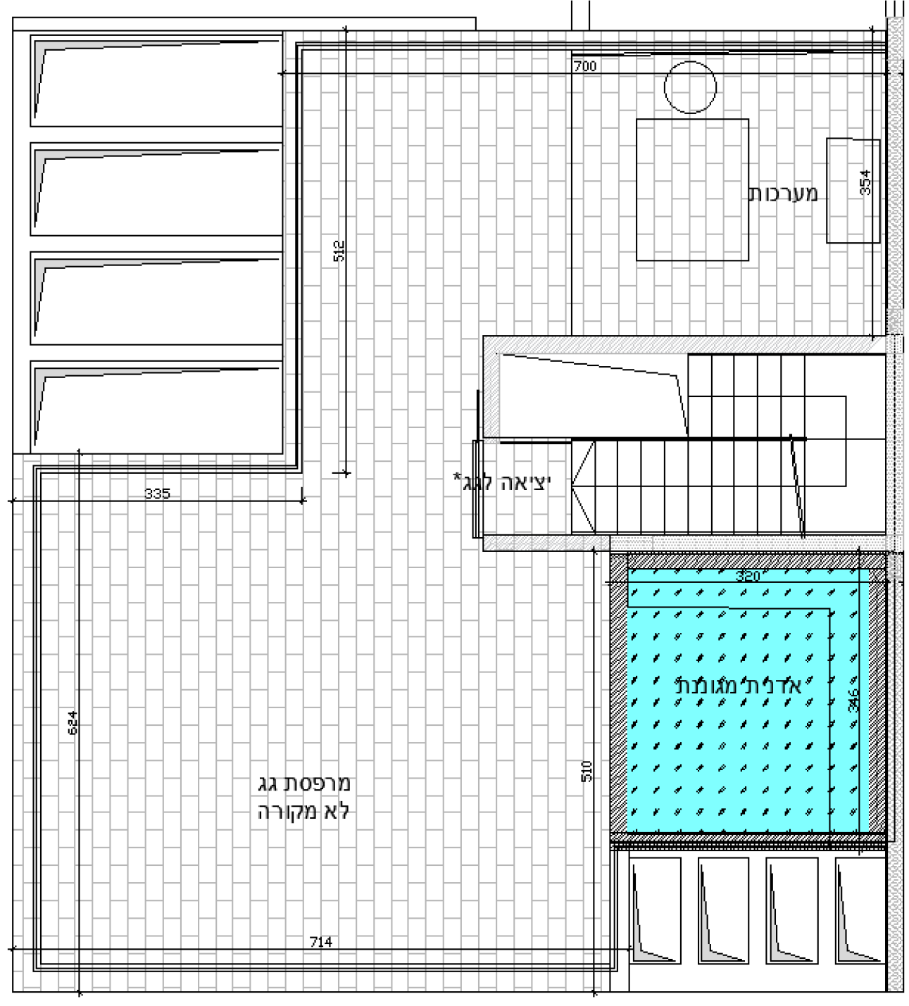
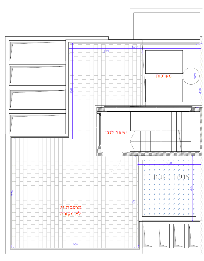
מרפסת גג

השאירו פרטים ונחזור אליכם בהקדם

מתעניין ברכישת בית ב:
אנא אשר/י שקראת והסכמת למדיניות הפרטיות

Compare Listings